Podobne oferty
CZN-MW-762 -- || -- CZN-MW-791 -- || -- CZN-MW-949 -- || -- CZN-MW-1091 -- || --2
39,00
76,92
Oferta na wyłączność
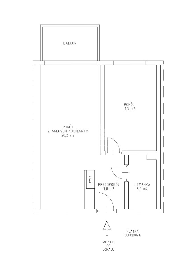
Przestronne, funkcjonalne mieszkanie 2 pokojowe o powierzchni 39,25 m2 - salon z aneksem kuchennym z wyjściem na balkon, sypialnia, przedpokój, miejsce postojowe, rowerownia.
Atrakcyjna lokalizacja - Krzyki - Gaj - - zaledwie 1,5 km od Centrum Handlowego Ferio Gaj i Uniwersyteckiego Szpitala Klinicznego oraz 4 km od Rynku
W najbliższym otoczeniu liczne sklepy, restauracje oraz tereny zielone - Park Skowroni
Mieszkanie zaprojektowane i wykończone ze starannością przy zastosowaniu wysokiej jakości materiałów
LOKALIZACJA:
- Wrocław, obręb Gaj, ulica Żegiestowska/ boczna al. Armii Krajowej;
- w bliskim sąsiedztwie CH Ferio Gaj, Uniwersytecki Szpital Kliniczny, szkoły i przedszkola, tereny rekreacyjne i spacerowe, restauracje oraz inne usługi;
- bardzo dobra komunikacja publiczna z pozostałymi dzielnicami miasta.
CHARAKTERYSTYKA:
- mieszkanie znajduje się na I piętrze sześciokondygnacyjnego budynku z 2023 roku;
- o powierzchni 39,25 m2 składające się z dobrze doświetlonego salonu z w pełni wyposażonym aneksem kuchennym z wyjściem na balkon, przestronnej sypialni, łazienki z wc oraz przedpokoju;
- mieszkanie wykończone przy zastosowaniu wysokiej jakości materiałów, stolarka okienna PCV;
- kompletne wyposażenie AGD (piekarnik, płyta indukcyjna, okap, lodówka z zamrażalnikiem, zmywarka, pralka);
- instalacje tv / internet / domofon;
- do dyspozycji najemcy miejsce postojowe w garażu podziemnym dodatkowo odpłatne 200zł/m-c.
- media miejskie.
CZYNSZ NAJMU: 3 000 zł/m-c
OPŁATY EKSPLOATACYJNE: 650 zł/m-c (zaliczka do WM) + prąd zgodnie ze zużyciem
wymagana zwrotna kaucja gwarancyjna w wysokości 4 100,00 zł
Niniejsza informacja nie stanowi oferty handlowej w rozumieniu Kodeksu cywilnego.
Pośrednik odpowiedzialny zawodowo za realizację umowy pośrednictwa: Piotr Czajczyński - licencja zawodowa nr 10273.
Nota prawna




