Wrocław, Śródmieście
mieszkanie na sprzedaż
Liczba pokoi
1
1
m2
28,00
28,00
zł/m2
19 607,14
19 607,14
549 000 zł
Opis nieruchomości
Oferta na wyłączność
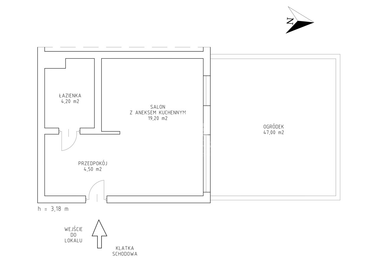
Nowoczesna i przestronna kawalerka o powierzchni 27,91m2 i wysokości 3,18m z wyjściem na duży ogródek ( 47m2), usytuowana z dala od ruchliwej ulicy
Idealna dla singla lub jako inwestycja pod wynajem
Mieszkanie położone w prestiżowym budynku, jednej z najbardziej pożądanych inwestycji we Wrocławiu. Budynek wielokrotnie nagradzany, wykonany z wysokiej jakości materiałów. Teren zamknięty, całodobowa ochrona, monitoring
LOKALIZACJA:
- Śródmieście, Nadodrze, ul. KURKOWA 14;
- odległość od Rynku zaledwie 1,0 km;
- w najbliższym otoczeniu liczne punkty usługowe oraz gastronomiczne;
- w bliskiej odległości: Ostrów Tumski, Teatr Współczesny, tereny zielone : Ogród Botaniczny, Park Mieszczański, Park Staszica oraz wały nad Odrą jak również uczelnie wyższe;
- doskonała komunikacja z centrum i pozostałymi częściami miasta.
CHARAKTERYSTYKA:
- mieszkanie znajduje się na parterze w 7-piętrowym apartamentowcu z 2014 roku;
- lokal składa się z przestronnego salonu połączonego z aneksem kuchennym (19,20m2 ) z wyjściem na duży ogródek ( 47m2), łazienki z wc (4,20m2) oraz przedpokoju (4,50m2);
- zadbana klatka schodowa zapewniająca niezakłócony spokój i bezpieczeństwo;
- stolarka okienna PVC z roletami zewnętrznymi;
- instalacje tv/internet/domofon;
- opłaty do W.M. : 510 zł/ m-c + prąd zgodnie ze zużyciem.
CENA: 549 000 zł
Nowoczesna i przestronna kawalerka o powierzchni 27,91m2 i wysokości 3,18m z wyjściem na duży ogródek ( 47m2), usytuowana z dala od ruchliwej ulicy
Idealna dla singla lub jako inwestycja pod wynajem
Mieszkanie położone w prestiżowym budynku, jednej z najbardziej pożądanych inwestycji we Wrocławiu. Budynek wielokrotnie nagradzany, wykonany z wysokiej jakości materiałów. Teren zamknięty, całodobowa ochrona, monitoring
LOKALIZACJA:
- Śródmieście, Nadodrze, ul. KURKOWA 14;
- odległość od Rynku zaledwie 1,0 km;
- w najbliższym otoczeniu liczne punkty usługowe oraz gastronomiczne;
- w bliskiej odległości: Ostrów Tumski, Teatr Współczesny, tereny zielone : Ogród Botaniczny, Park Mieszczański, Park Staszica oraz wały nad Odrą jak również uczelnie wyższe;
- doskonała komunikacja z centrum i pozostałymi częściami miasta.
CHARAKTERYSTYKA:
- mieszkanie znajduje się na parterze w 7-piętrowym apartamentowcu z 2014 roku;
- lokal składa się z przestronnego salonu połączonego z aneksem kuchennym (19,20m2 ) z wyjściem na duży ogródek ( 47m2), łazienki z wc (4,20m2) oraz przedpokoju (4,50m2);
- zadbana klatka schodowa zapewniająca niezakłócony spokój i bezpieczeństwo;
- stolarka okienna PVC z roletami zewnętrznymi;
- instalacje tv/internet/domofon;
- opłaty do W.M. : 510 zł/ m-c + prąd zgodnie ze zużyciem.
CENA: 549 000 zł
Niniejsza informacja nie stanowi oferty handlowej w rozumieniu Kodeksu cywilnego.
Pośrednik odpowiedzialny zawodowo za realizację umowy pośrednictwa: Piotr Czajczyński - licencja zawodowa numer 10273.
Nota prawna
Opis oferty zawarty na stronie internetowej sporządzany jest na podstawie oględzin nieruchomości oraz informacji uzyskanych od właściciela, może podlegać aktualizacji i nie stanowi oferty określonej w art. 66 i następnych K.c.
Podstawowe
Symbol oferty
CZN-MS-1166
Powierzchnia
28,00 m²
Liczba pokoi
1
Piętro
parter
Szczegóły
Rodzaj budynku
apartamentowiec
Standard





Opłaty w czynszu
administracja, CO, Części wspólne, fundusz remontowy, monitoring, Winda, woda/ryczałt na wodę, wywóz nieczystości
Liczba pięter w budynku
7
Stan lokalu
dobry
Stan prawny
Własność
Mies. czynsz admin.
510 PLN
Okna
PCV
Rok budowy
2014
Winda
tak
Liczba wind
1
Tarasy
taras duży
Usytuowanie
środkowe
Drzwi antywłamaniowe
tak
Rolety antywłamaniowe
tak
Klucze
tak
Pośrednik w obrocie nieruchomościami
Kontakt z agentem