Podobne oferty
CZN-MS-1088 -- || -- CZN-MS-1090 -- || --Wrocław, Krzyki
mieszkanie na sprzedaż
Liczba pokoi
3
3
m2
55,91
55,91
zł/m2
13 772,13
13 772,13
770 000 zł
Opis nieruchomości
Oferta na wyłączność
Wyjątkowo funkcjonalne, w pełni rozkładowe, trzypokojowe mieszkanie z tarasem i ogródkiem oraz naziemnym miejscem parkingowym
Mieszkanie położone w południowej części Wrocławia, na Wojszycach, o wysoce rozwiniętej infrastrukturze społecznej i komfortowym połączeniu komunikacyjnym z pozostałymi dzielnicami miasta (zaledwie 2 km do wjazdu na Wschodnią Obwodnicę Wrocławia)
Mieszkanie wyposażone, wszystkie media miejskie, idealne dla rodziny
LOKALIZACJA:
- Wrocław, Wojszyce, ul. Jarosława Iwaszkiewicza (boczna ul. Grota - Roweckiego);
- odległość od ścisłego centrum miasta (Rynek) ok. 7,5 km;
- w najbliższym otoczeniu sklepy wielobranżowe, punkty usługowe i gastronomiczne, kościół, etc.
- bogata oferta edukacyjna, którą zapewnia pobliska szkoła podstawowa, przedszkole - Wojszycka Akademia Talentów, Przedszkole Międzynarodowe i żłobek;
- w niedalekiej odległości (ok. 10 minut pieszo) atrakcyjne tereny zielone, m. in. Park Wojszycki;
- dobra komunikacja z centrum i pozostałymi częściami miasta: przystanki autobusowe oddalone o około 400 m (linia 113, 249, 903).
CHARAKTERYSTYKA:
- mieszkanie znajduje się na parterze 2-piętrowego budynku z 2013 roku wzniesionego przez firmę ATAL;
- budynek położony na bezpiecznym, zamkniętym osiedlu "Apartamenty Zielone Wojszyce", wjazd ograniczony szlabanem;
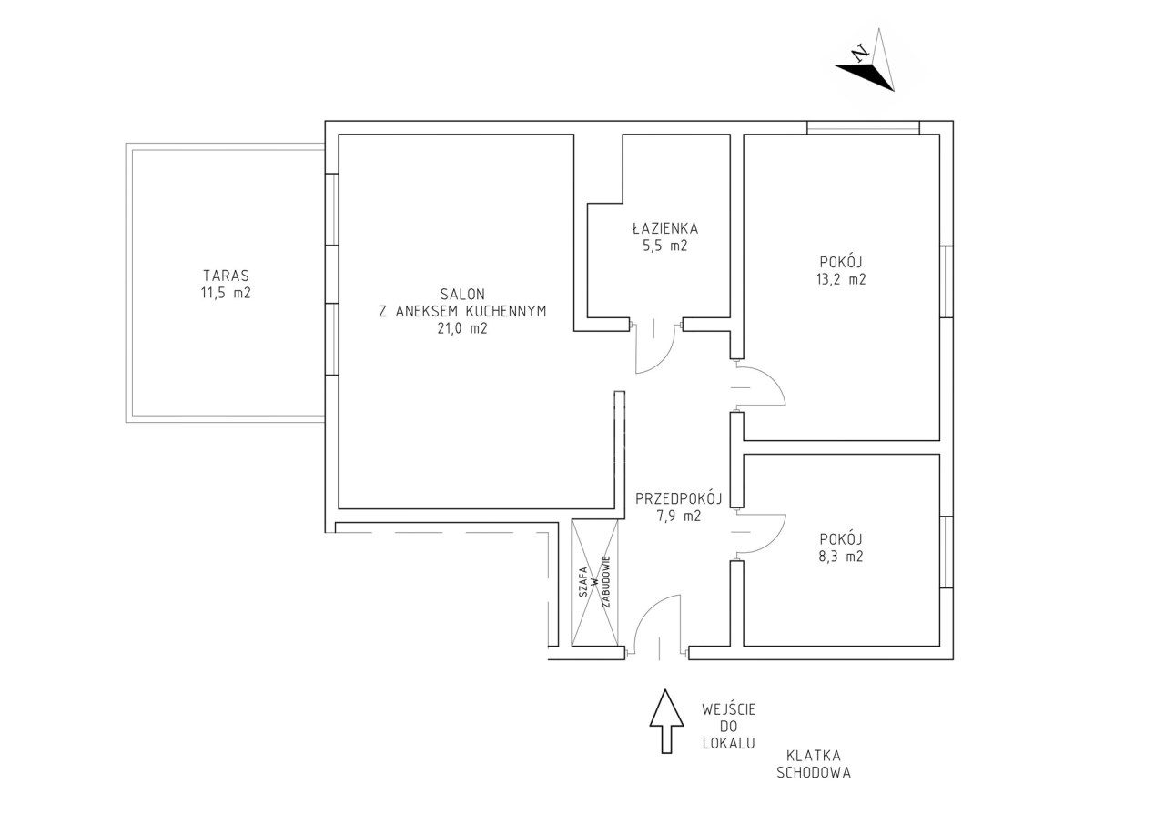
- mieszkanie o powierzchni 55,91 m2, na którą składają się: salon z aneksem kuchennym (ok. 21 m2), 2 sypialnie (13,2 m2; 8,3 m2), łazienka z wc (5,5 m2) i przedpokój (7,9 m2);
- wysokość mieszkania: 2,73 m;
- bezpośrednie wyjście na taras i ogród z salonu;
- kuchnia wyposażona w sprzÄ™t AGD (pÅ‚yta ceramiczna, piekarnik, okap, zmywarka oraz wolno stojÄ…ca lodówka z zamrażalnikiem), w Å‚azience pralka;Â
- stolarka okienna PCV wyposażona w zewnętrzne rolety;
- w pokojach panele podłogowe; w kuchni, łazience i przedpokoju gresy;
- wszystkie media miejskie;
- naziemne miejsce parkingowe na dziedzińcu do wyłącznego korzystania,
- opłaty eksploatacyjne do W.M.: ok. 850 zł/m-c.
Cena mieszkania: 770 000 zł
Cena miejsca postojowego: 20 000 zł (zakup obligatoryjny)
Wyjątkowo funkcjonalne, w pełni rozkładowe, trzypokojowe mieszkanie z tarasem i ogródkiem oraz naziemnym miejscem parkingowym
Mieszkanie położone w południowej części Wrocławia, na Wojszycach, o wysoce rozwiniętej infrastrukturze społecznej i komfortowym połączeniu komunikacyjnym z pozostałymi dzielnicami miasta (zaledwie 2 km do wjazdu na Wschodnią Obwodnicę Wrocławia)
Mieszkanie wyposażone, wszystkie media miejskie, idealne dla rodziny
LOKALIZACJA:
- Wrocław, Wojszyce, ul. Jarosława Iwaszkiewicza (boczna ul. Grota - Roweckiego);
- odległość od ścisłego centrum miasta (Rynek) ok. 7,5 km;
- w najbliższym otoczeniu sklepy wielobranżowe, punkty usługowe i gastronomiczne, kościół, etc.
- bogata oferta edukacyjna, którą zapewnia pobliska szkoła podstawowa, przedszkole - Wojszycka Akademia Talentów, Przedszkole Międzynarodowe i żłobek;
- w niedalekiej odległości (ok. 10 minut pieszo) atrakcyjne tereny zielone, m. in. Park Wojszycki;
- dobra komunikacja z centrum i pozostałymi częściami miasta: przystanki autobusowe oddalone o około 400 m (linia 113, 249, 903).
CHARAKTERYSTYKA:
- mieszkanie znajduje się na parterze 2-piętrowego budynku z 2013 roku wzniesionego przez firmę ATAL;
- budynek położony na bezpiecznym, zamkniętym osiedlu "Apartamenty Zielone Wojszyce", wjazd ograniczony szlabanem;
- mieszkanie o powierzchni 55,91 m2, na którą składają się: salon z aneksem kuchennym (ok. 21 m2), 2 sypialnie (13,2 m2; 8,3 m2), łazienka z wc (5,5 m2) i przedpokój (7,9 m2);
- wysokość mieszkania: 2,73 m;
- bezpośrednie wyjście na taras i ogród z salonu;
- kuchnia wyposażona w sprzÄ™t AGD (pÅ‚yta ceramiczna, piekarnik, okap, zmywarka oraz wolno stojÄ…ca lodówka z zamrażalnikiem), w Å‚azience pralka;Â
- stolarka okienna PCV wyposażona w zewnętrzne rolety;
- w pokojach panele podłogowe; w kuchni, łazience i przedpokoju gresy;
- wszystkie media miejskie;
- naziemne miejsce parkingowe na dziedzińcu do wyłącznego korzystania,
- opłaty eksploatacyjne do W.M.: ok. 850 zł/m-c.
Cena mieszkania: 770 000 zł
Cena miejsca postojowego: 20 000 zł (zakup obligatoryjny)
Niniejsza informacja nie stanowi oferty handlowej w rozumieniu Kodeksu cywilnego.
Pośrednik odpowiedzialny zawodowo za realizację umowy pośrednictwa: Piotr Czajczyński - licencja zawodowa numer 10273.
Nota prawna
Opis oferty zawarty na stronie internetowej sporządzany jest na podstawie oględzin nieruchomości oraz informacji uzyskanych od właściciela, może podlegać aktualizacji i nie stanowi oferty określonej w art. 66 i następnych K.C.
Podstawowe
Symbol oferty
CZN-MS-1089
Powierzchnia
55,91 m²
Powierzchnia użytkowa
55,91 m²
Liczba pokoi
3
Piętro
parter
Szczegóły
Rodzaj budynku
apartamentowiec
Standard





Opłaty w czynszu
wywóz nieczystości, woda, fundusz remontowy, Części wspólne, CO, administracja
Opłaty wg liczników
Woda zimna, Woda ciepła, prąd, CO
Liczba pięter w budynku
2
Garaż
miejsce postojowe
Stan lokalu
do wprowadzenia
Stan prawny
Odrębna własność lokalu
Mies. czynsz admin.
850 PLN
Okna
PCV
Instalacje
nowe
Rok budowy
2013
Gaz
brak
Woda
jest
Ogrzewanie
C.O. GAZOWE
Winda
tak
Liczba wind
1
Tarasy
taras duży
Usytuowanie
narożne
Rolety antywłamaniowe
tak
Klucze
tak
Pomieszczenia
Powierzchnia pokoi
16,13,8,6 m2
Podłogi pokoi
wykładzina dywanowa
Rodzaj kuchni
oddzielna i widna
Powierzchnia kuchni
6 m2
Typ łazienki
razem z wc
Liczba łazienek
1
Powierzchnia łazienki
4 m2
Podłoga łazienki
gres
Powierzchnia przedpokoi
7 m2
Rzeczoznawca majÄ…tkowy
Kontakt z agentem