Podobne oferty
CZN-MS-1118 -- || --4
79,77
7 258,37
Oferta na wyłączność
Gniechowice - tylko 10 min do Bielan Wrocławskich, w sąsiedztwie Pałacu Krobielowice, pola golfowego oraz Parku Krajobrazowego Dolina Bystrzycy
Nowe budownictwo (2016 rok), wysoki standard i bezpieczeństwo obiektu, winda, garaż podziemny, osiedle zamknięte
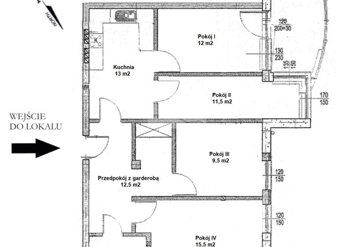
Komfortowe mieszkanie jednopoziomowe 80 m2: 4 pokoje, kuchnia, łazienka z wc i przedpokój z garderobą; dodatkowo balkon
Możliwość przywrócenia pierwotnej struktury mieszkania, tj. 3 pokoi, w tym salonu z aneksem kuchennym o powierzchni 38 m2 (po demontażu ścianki działowej z GK)
LOKALIZACJA:
- gm. Kąty Wrocławskie, Gniechowice, ul. Kątecka 38;
- tylko 5 min do Biskupic Podgórnych oraz wjazdu na autostradę A4;
- 10 min do Kątów Wrocławskich i Bielan Wrocławskich.
CHARAKTERYSTYKA:
- mieszkanie jednopoziomowe położone na piętrze I trzykondygnacyjnego budynku z 2016 roku;
- budynek o podwyższonym standardzie (w częściach wspólnych kamień naturalny, szkło, metal, cichobieżna winda, monitoring);
- mieszkanie o powierzchni użytkowej 79,77 m2, na którą składają się: 4 pokoje (ok. 15,5 m2; 12 m2; 11,5 m2; 9,5 m2), kuchnia (13 m2), łazienka (4,5 m2) i przedpokój z garderobą (12,5 m2);
- do mieszkania przylega ponadto balkon o powierzchni ok. 8 m2;
- stolarka okienna PCV z roletami zewnętrznymi, drzwi antywłamaniowe;
- na podłogach nowoczesne gresy i panele podłogowe;
- wystawa okienna zachodnia;
- wysokość mieszkania: 2,75 m;
- do lokalu przynależy miejsce postojowe w garażu podziemnym (dodatkowo odpłatne: 20 000 zł);
- ogrzewanie centralne (wspólna kotłownia dla budynku);
- instalacje: tv/internet/domofon.
CENA MIESZKANIA: 579 000 zł
CENA MIEJSCA PARKINGOWEGO: 20 000 zł
sprzedaż łączna
Niniejsza informacja nie stanowi oferty handlowej w rozumieniu przepisów Kodeksu cywilnego.
Pośrednik odpowiedzialny zawodowo za realizację umowy pośrednictwa: Piotr Czajczyński - licencja zawodowa numer 10273.
Nota prawna




