Podobne oferty
CZN-LW-1131 -- || --3
133,00
59,40
Oferta na wyłączność
Lokal o funkcji handlowo - usługowej położony na parterze budynku wielorodzinnego z usługami w parterze - DACH BUD
Witryny wystawowe, klimatyzacja, 2 wejścia: bezpośrednio z chodnika oraz od zaplecza
Dobra ekspozycja, lokalizacja o wzmożonym natężeniu ruchu pieszego i kołowego
OgólnodostÄ™pne miejsca parkingowe wzdÅ‚uż ulicyÂ
Lokalizacja:
- Wrocław - Krzyki, Południe, ul. Komandorska;
- strefa śródmiejska, odległość od ścisłego centrum (Rynku) niespełna 2 km;
- w najbliższym otoczeniu Dworzec PKS i PKP WrocÅ‚aw Główny, CH Wroclavia, EPI Market, Uniwersytet Ekonomiczny, SÄ…d Rejonowy, Izba Skarbowa oraz hotele i biurowce klasy A; Â
- w bezpośrednim sąsiedztwie przystanki komunikacji miejskiej oraz punkty handlowo - usługowe różnych branż.
Charakterystyka:
- budynek wielorodzinny z usÅ‚ugami w parterze wzniesiony w 1999 roku przez przedsiÄ™biorstwo DACH BUD;Â
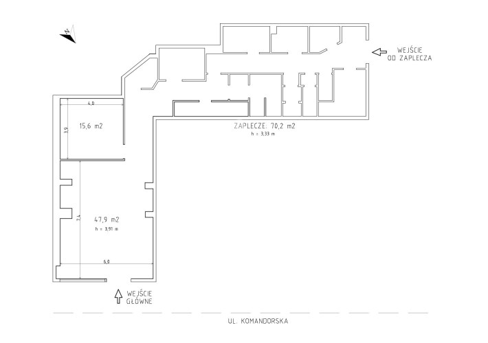
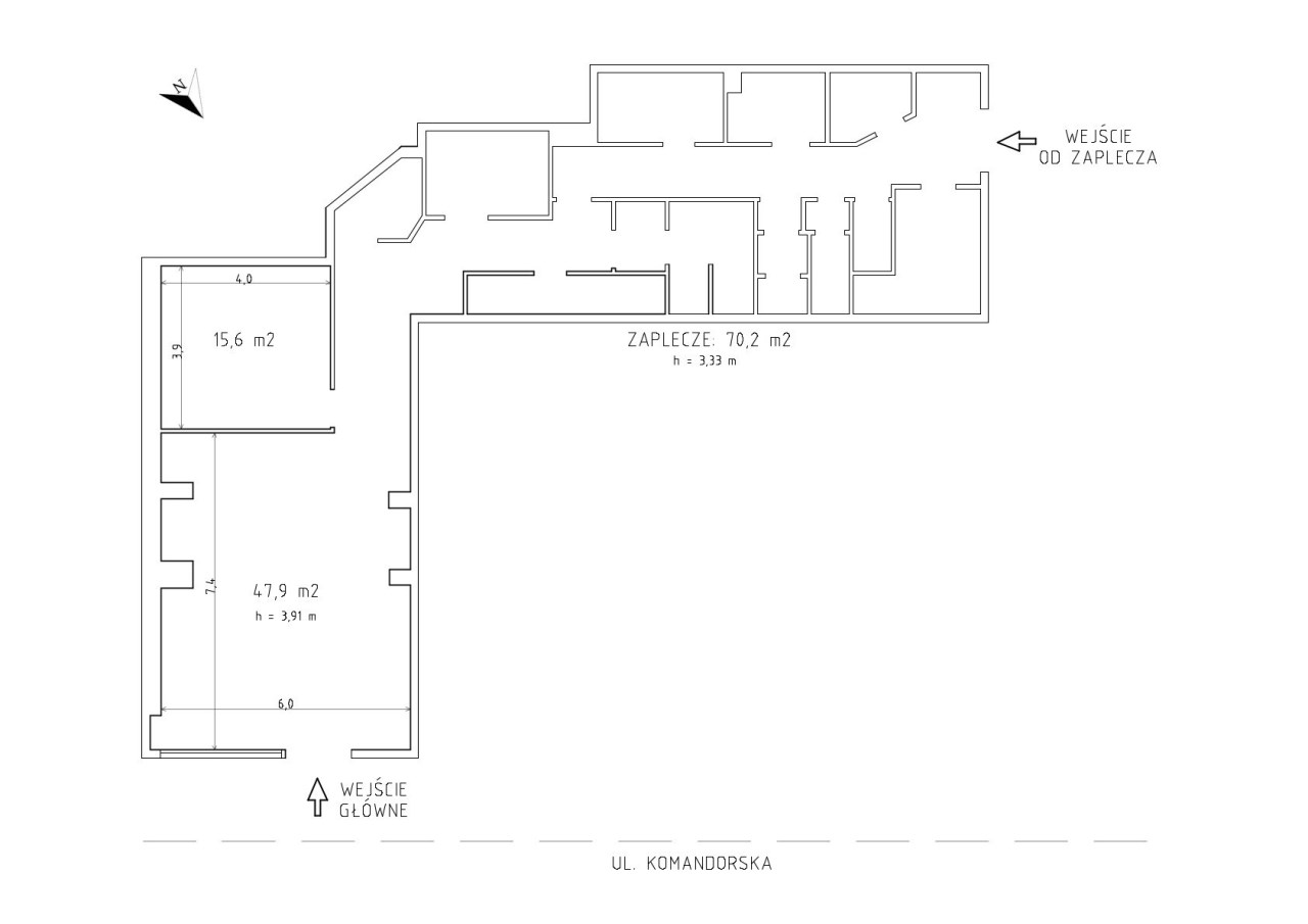
- parter, powierzchnia użytkowa lokalu 133 m2, na którą składają się: sala sprzedaży (63,5 m2) oraz zaplecze z wydzielonymi pomieszczeniami sanitarnymi i magazynowymi (70m2);
- wysokość lokalu: 3,9 m;
- możliwość dowolnej aranżacji powierzchni przez najemcę (ścianki działowe wykonane w technologii lekkiej G-K);
- na elewacji budynku przewidziane miejsce pod montaż reklamy / szyldu podświetlanego;
- stolarka okienna i drzwiowa PCV;
- klimatyzacja;
-Â wszystkie media miejskie.
Czynsz najmu: 7 900 zł netto/m-c + 23% VAT.
Opłaty eksploatacyjne: 1 435 zł netto/m-c + media wg zużycia + 23% VAT.
Wymagana trzymiesięczna kaucja gwarancyjna.
Niniejsza informacja nie stanowi oferty handlowej w rozumieniu Kodeksu cywilnego.
Pośrednik odpowiedzialny zawodowo za realizację umowy pośrednictwa: Piotr Czajczyński - licencja zawodowa nr 10273.
Nota prawna




