Podobne oferty
CZN-LW-1100 -- || --1
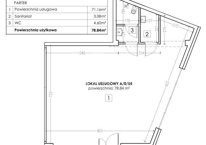
78,84
70,02
Lokal użytkowy w stanie deweloperskim położony na parterze nowo wzniesionego budynku wielorodzinnego CITYZEN
Dynamicznie rozwijająca się dzielnica Wrocławia u zbiegu ulic Zakładowej i Rychtalskiej, w odległości zaledwie 3,5 km od Rynku
W otoczeniu takich inwestycji, jak Promenady Wrocławskie i Browary Wrocławskie oraz centrum biurowego Promenady Business Park
Duże witryny, wejście bezpośrednio z chodnika, szerokie możliwości aranżacji
Lokal o przeznaczeniu handlowym lub usługowym, wysoka dostępność miejsc parkingowych
Dostępna również większa powierzchnia - 116 m2
LOKALIZACJA:
- Wrocław, ul. Browarna, budynek CITYZEN;
- w bezpośrednim otoczeniu intensywna, nowa zabudowa wielorodzinna, handlowa i biurowa, klimatyczne Nadodrze oraz tereny rekreacyjne i spacerowe wzdłuż Odry;
- bardzo dobra komunikacja publiczna z pozostałymi dzielnicami miasta.
CHARAKTERYSTYKA:
- lokal znajduje się na parterze nowego budynku wielorodzinnego wchodzącego w skład kompleksu mieszkaniowego CITYZEN mieszczącego ponad 300 mieszkań;
- stan deweloperski, powierzchnia do dowolnej aranżacji przez najemcę;
- duże witryny, wysokość lokalu: 3,48 m.
CZYNSZ NAJMU: 5 520 zł netto/m-c, tj. 70 zł netto/m2
opłaty eksploatacyjne: 10 zł netto/m2/m-c
media: wg zużycia
wymagana trzymiesięczna kaucja gwarancyjna
Niniejsza informacja nie stanowi oferty handlowej w rozumieniu Kodeksu cywilnego.
Pośrednik odpowiedzialny zawodowo za realizację umowy pośrednictwa: Piotr Czajczyński - licencja zawodowa nr 10273.
Nota prawna




